BUILDING SYSTEMS
ビル設備・仕様
多重セキュリティ
警備方法:カード入館システム、インターホンロック、監視カメラ(1階部分のみ)
光ケーブル(LAN配線)
MDFまで導入済
防災
消火器、自動火災報知、誘導灯、誘導標識、連結送水管、避難器具、防火扉、避雷針
エレベーター
11人乗り×2基(90m/min.)
空調
各階個別空調(フロア内分割対応、24時間利用可)
OAフロア
H=30mm
駅前大通りに面した好立地。
OVERVIEW
| 所在地 | 神奈川県横浜市港北区新横浜3-7-3 |
|---|---|
| 敷地面積 | 643.85㎡(194.76坪) |
| 延床面積 | 5,900.56㎡(1,784.91坪) |
| 構造規模 | 鉄骨鉄筋コンクリート造/地上9階、地下1階 |
| 竣工年月 | 1986年3月 |
| 交通 | 新横浜駅 徒歩1分 |
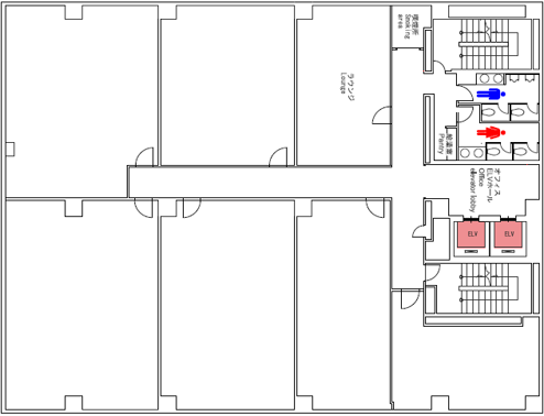
基準階平面図
BUILDING SYSTEMS
警備方法:カード入館システム、インターホンロック、監視カメラ(1階部分のみ)
MDFまで導入済
消火器、自動火災報知、誘導灯、誘導標識、連結送水管、避難器具、防火扉、避雷針
11人乗り×2基(90m/min.)
各階個別空調(フロア内分割対応、24時間利用可)
H=30mm
賃貸オフィスについてのご相談は是非お気軽にお問い合わせください